Opulence Beyond Your Imagination
For SaleWelcome to 97 South Perth Esplanade — a bold architectural statement that celebrates exclusivity, light, and lifestyle. With only seven residences across five grand levels, this is not just a development — it’s a once-in-a-generation address.
Nestled at the most coveted address along South Perth Esplanade, 97 is not merely a place to reside, it’s a statement of refined taste, privacy, and architectural mastery.
Overlooking the glittering Swan River and facing uninterrupted city skyline vistas, this rare offering is poised to become South Perth’s most prestigious residential address.
Seven Residences Only. Infinite Exclusivity.
The Entrance & Building Landscaped gardens throughout the development representing the cultural heritage of the site. Pedestrian access boardwalk through a feature wetland landscaped frontage. The landscape design is centered on the ‘River to Woodland’, responding to the location on the Swan River Edge with a transition to a Banksia and Marri woodland. The transition is representative of the pre-settlement landscaping conditions of the locality.
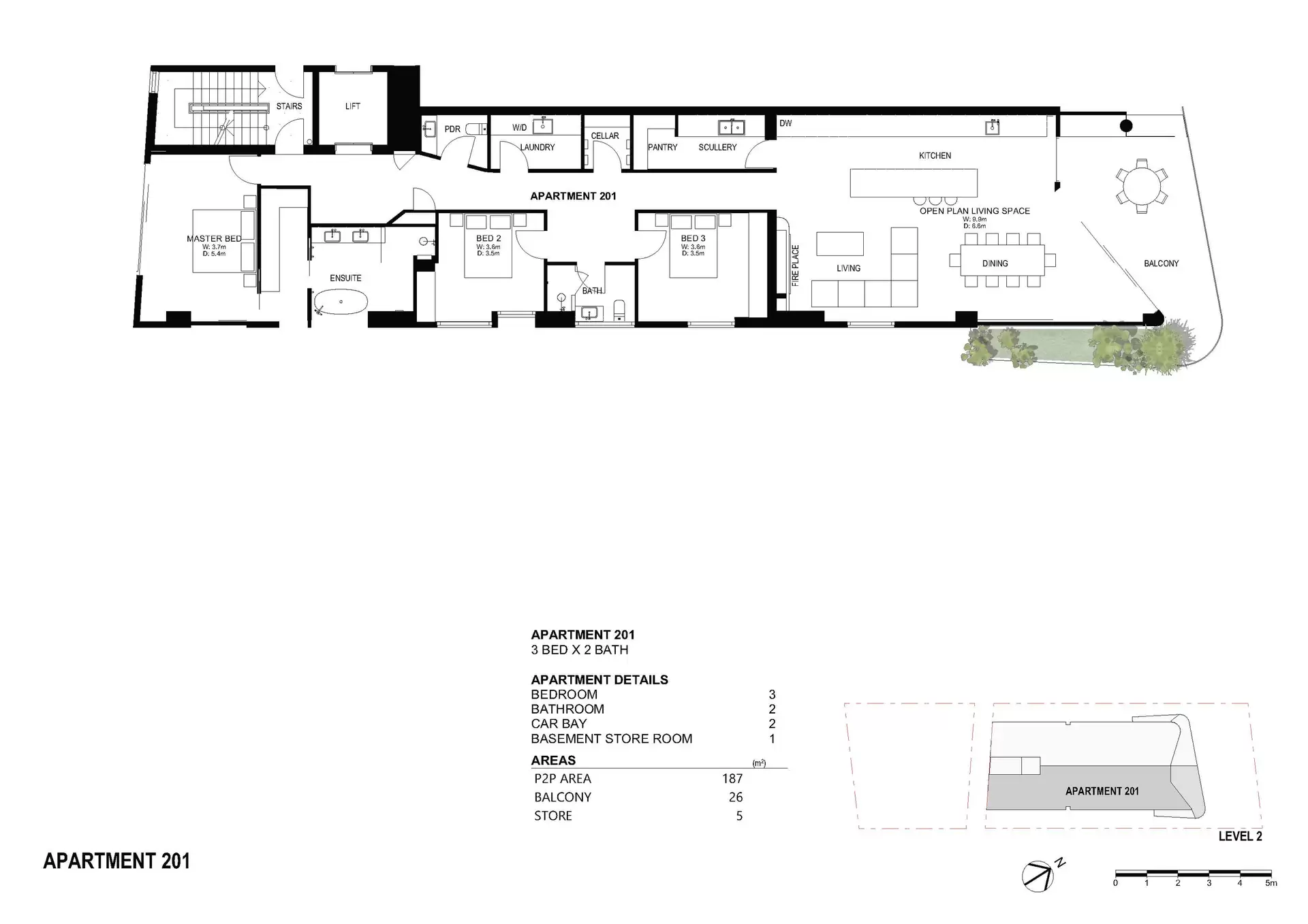
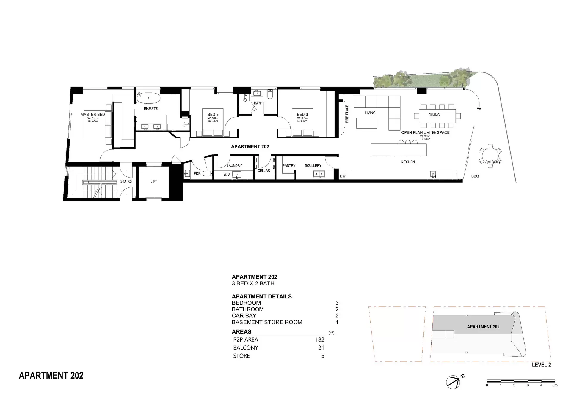
Features
* Expansive open-plan living areas
* Bespoke kitchens with scullery and wine storage
* Gaggenau appliances
* Stone bench-tops, flooring and features
* Marble tiles throughout
* Lavish ensuites and dressing rooms
* State-of-the-art smart home integration
* Double glazed windows
* Ceiling fans to all rooms and bedrooms
* Secure parking for two vehicles
* Electric vehicle charging and visitor parking
* 7sqm - 9sqm storage room
The ‘River’ will create a vision of a riverine landscape using open water and a mix of native plants that would typically be found in this environment. This landscape will be blended with bands of manicured stone, feature rocks and have sculptural representations of local fauna. ECO Friendly The project delivers a palette of high quality materials and integrating features designed to conserve energy and water such as high-tech insulation, solar panels, EV charging stations, geothermal systems and rainwater collection systems. Other eco-friendly features will include smart lighting, HEPA-friendly air filters, water purification systems and more. Solar Panels on the terrace.
Location - An Address Beyond Compare With Kings Park behind you and the Swan River at your doorstep, 97 South Perth Esplanade offers effortless access to Perth CBD, Elizabeth Quay, South Perth Ferry Service, fine dining, marina clubs, and cultural icons; yet, it remains peacefully secluded shielded by mature landscaping and the river's own tranquility.
Important Information
* 7 in this development
* Developer - Griffin Group
* Location is the eastern end of the South Perth Esplanade
* 10% Deposit - Settlement upon completion in 2027
Please contact Exclusive Listing Agent Meryl Carter for a confidential meeting to walk you through the Information Memorandum including selections, pricing, floor plans and registering your interest. Mobile 0438 444 000 or email meryl.carter@luxuryrealestatesales.com.au
Disclaimer All information on our Luxury Real Estate Sales website and associated platforms, is provided as a guide to you and has been provided to us by third parties. Meryl Carter & Luxury Real Estate Sales Affiliates do not accept any liability (direct or indirect) for any injury, loss, claim, damage or any incidental or consequential damages, including but not limited to lost profits or savings, arising out of or in any way connected with the use of any information, or any error, omission, or defect in the information, contained on our website. Information contained on the website should not be relied upon and you should make your own enquiries and seek legal advice. Prices displayed on the website are current at the time of issue but may change at any time.